Logo
k
i
Projektvorschaubild

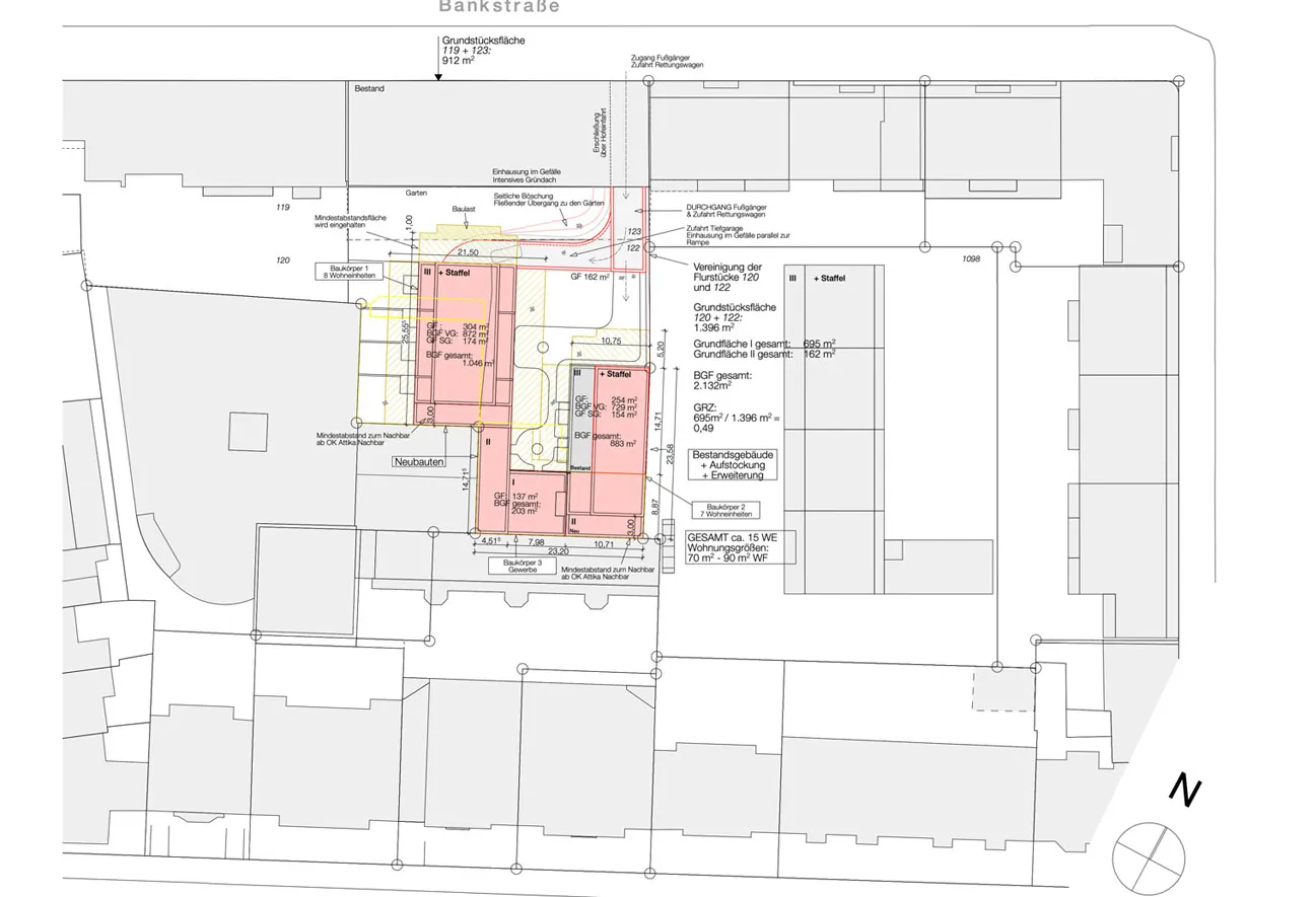
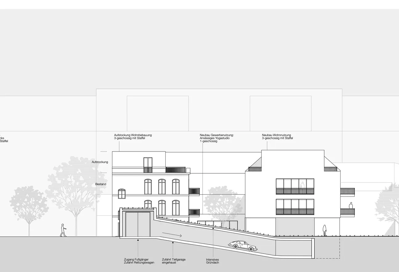
BAN_07 / (IN) PLANUNG

Neubau Büro und Wohnen
Hofbebauung mit Bestand
Bauvoranfrage, Bescheid positiv

Aufstockung und Sanierung des Vorderhauses
Bauantrag, Genehmigung erteilt
LP 1-4

Bankstrasse 7
Düsseldorf

2020

Projektdetailbild
Projektdetailbild
Projektdetailbild
Projektdetailbild
Projektdetailbild
Projektdetailbild
Projektdetailbild
Projektdetailbild
Projektdetailbild
Projektdetailbild