Logo
k
i
Projektvorschaubild

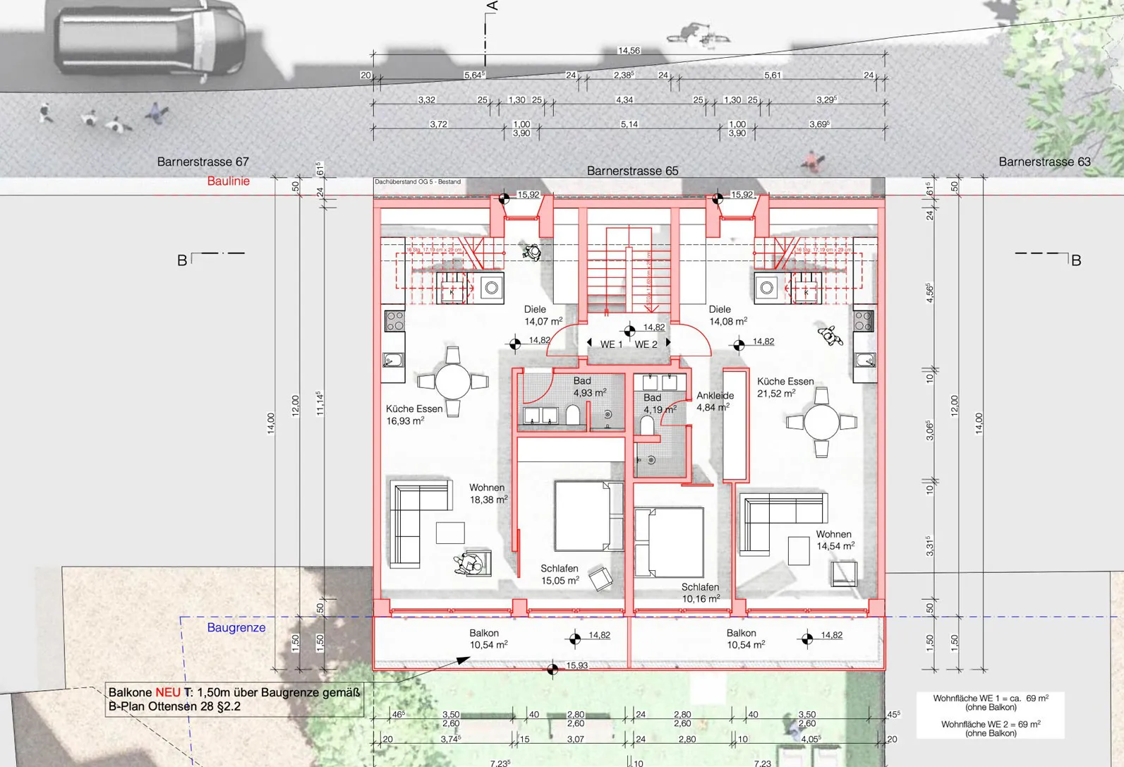
BAR_65 / (IN) PLANUNG

Aufstockung auf ein Mehrfamilienhaus
Status: Baugenehmigung erteilt
LP 1-4

Barnerstraße 65
Hamburg

2021

Projektdetailbild
Projektdetailbild
Projektdetailbild
Projektdetailbild
Projektdetailbild