Logo
k
i
Projektvorschaubild

BAU_48 / REALISIERT

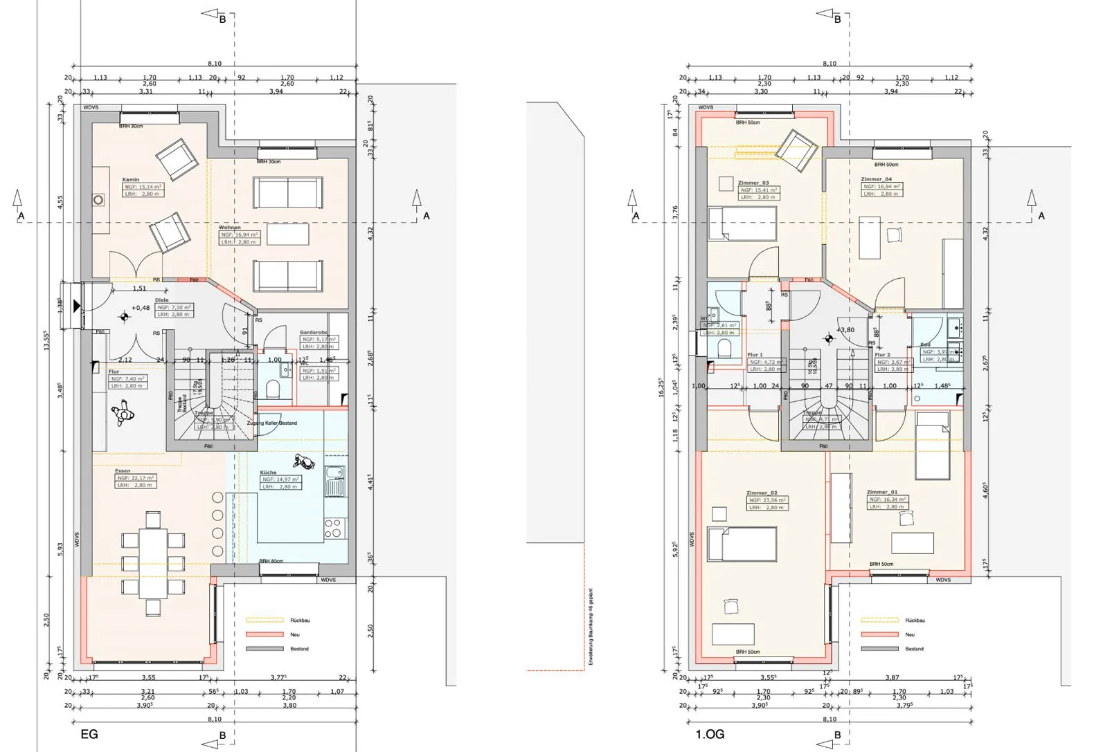
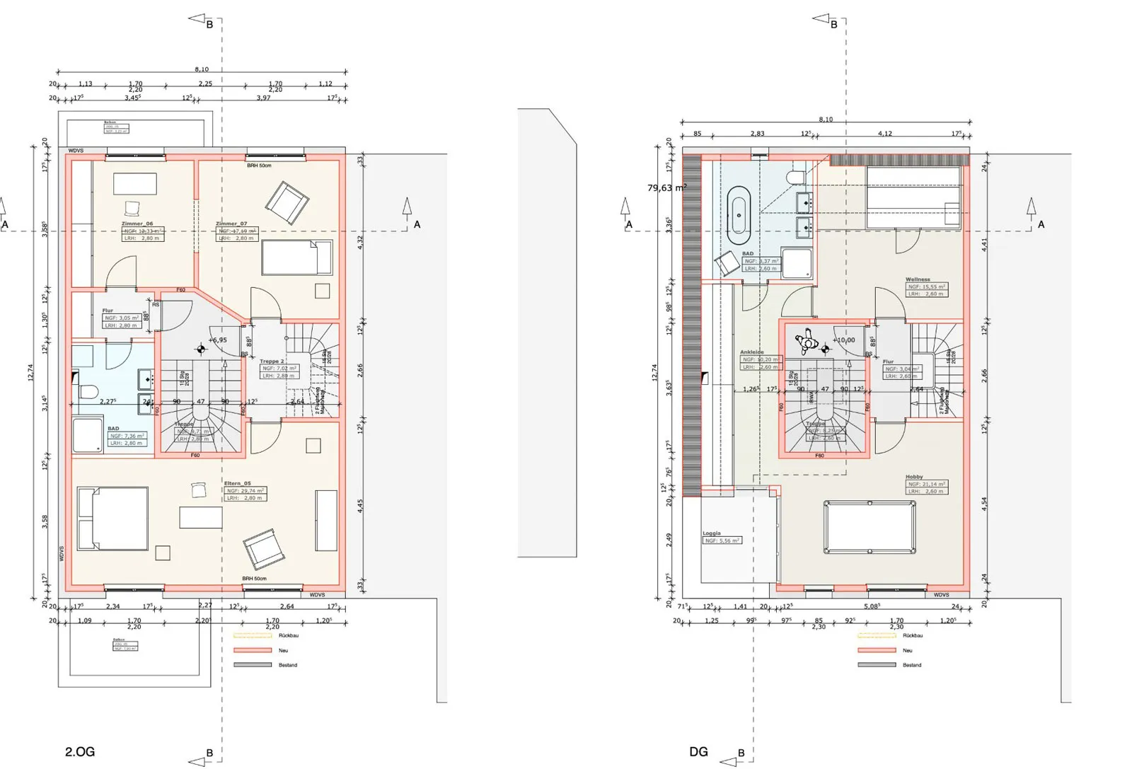
Stadtvilla
Planung + Ausführung
LP 1-8

Baumkamp 48
Hamburg

2012

Projektdetailbild
Projektdetailbild
Projektdetailbild
Projektdetailbild
Projektdetailbild
Projektdetailbild