Logo
k
i
Projektvorschaubild

BRA_72 / REALISIERT

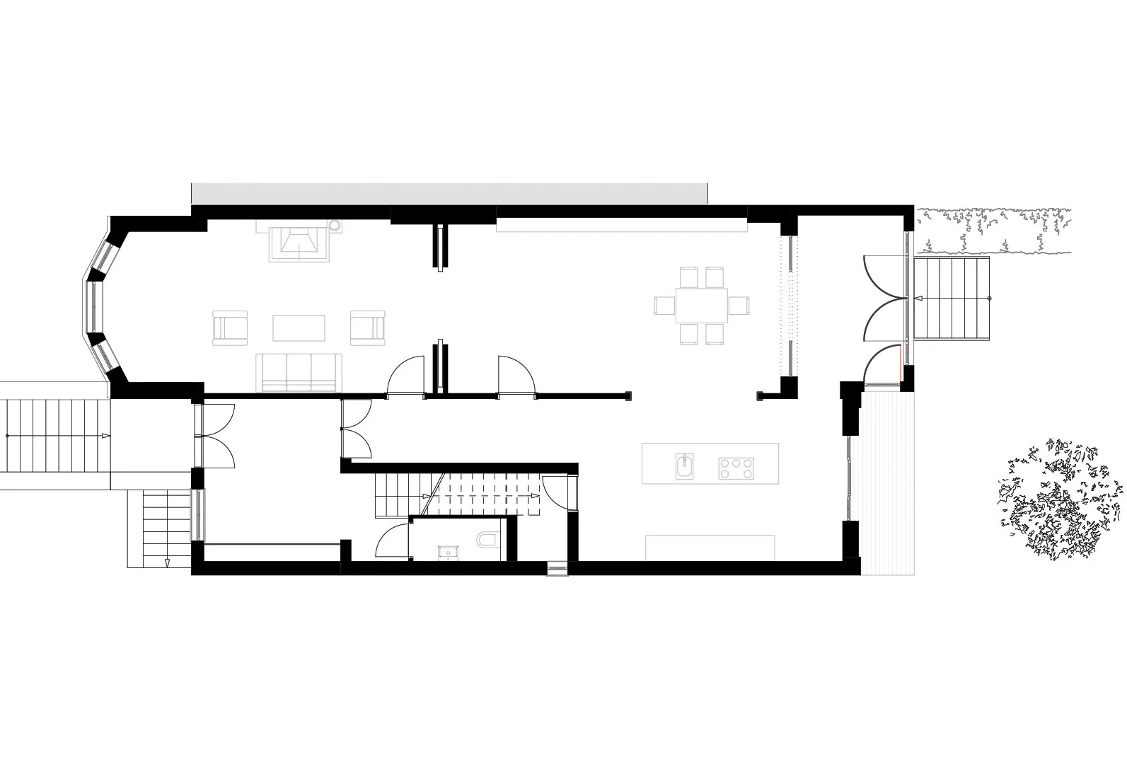
Umbau- und Sanierung einer Stadtvilla
Planung
LP 1 - 5

Brahmsalle 72
Hamburg

2009

Projektdetailbild
Projektdetailbild
Projektdetailbild
Projektdetailbild
Projektdetailbild
Projektdetailbild
Projektdetailbild
Projektdetailbild
Projektdetailbild
Projektdetailbild
Projektdetailbild
Projektdetailbild