Logo
k
i
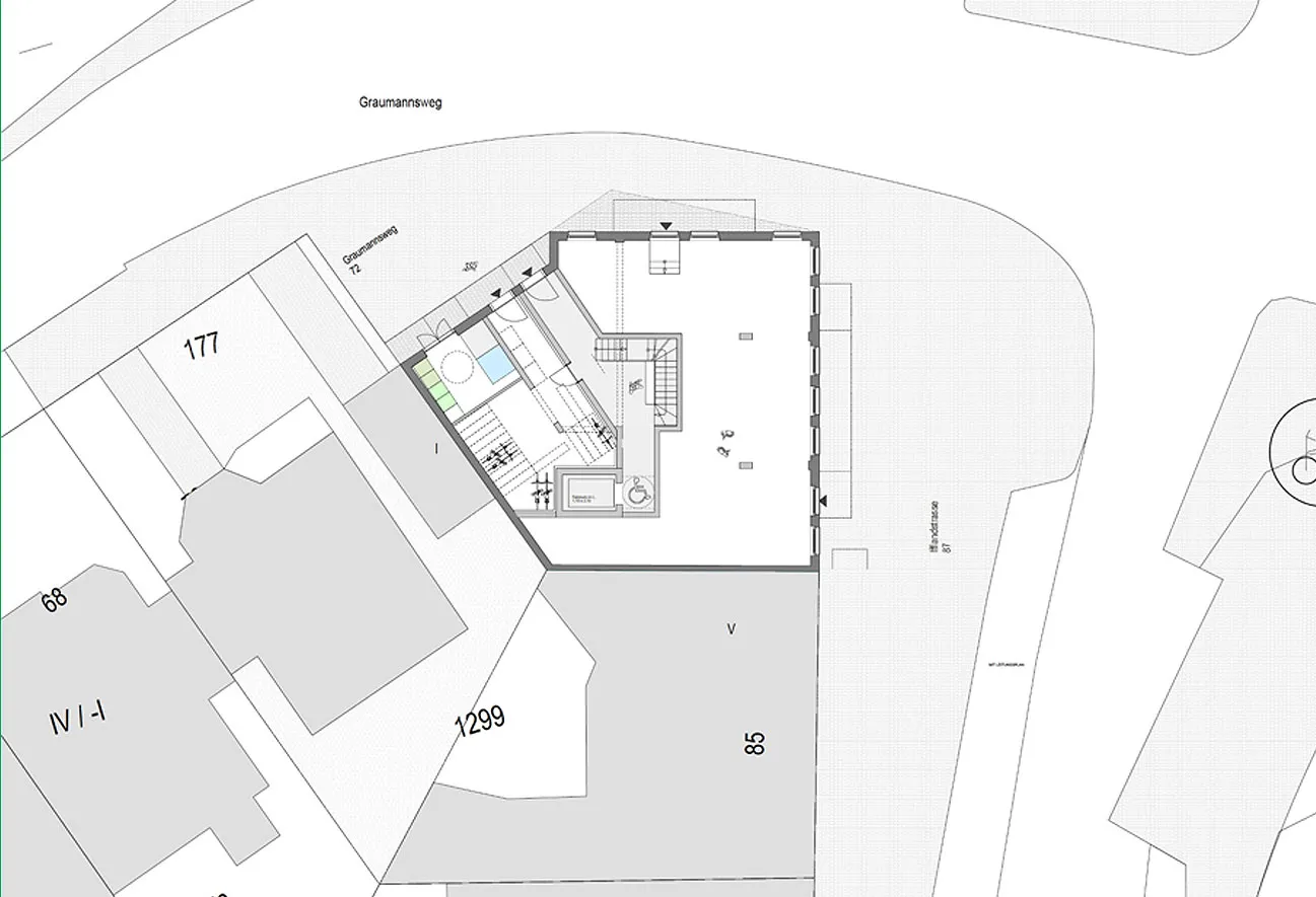
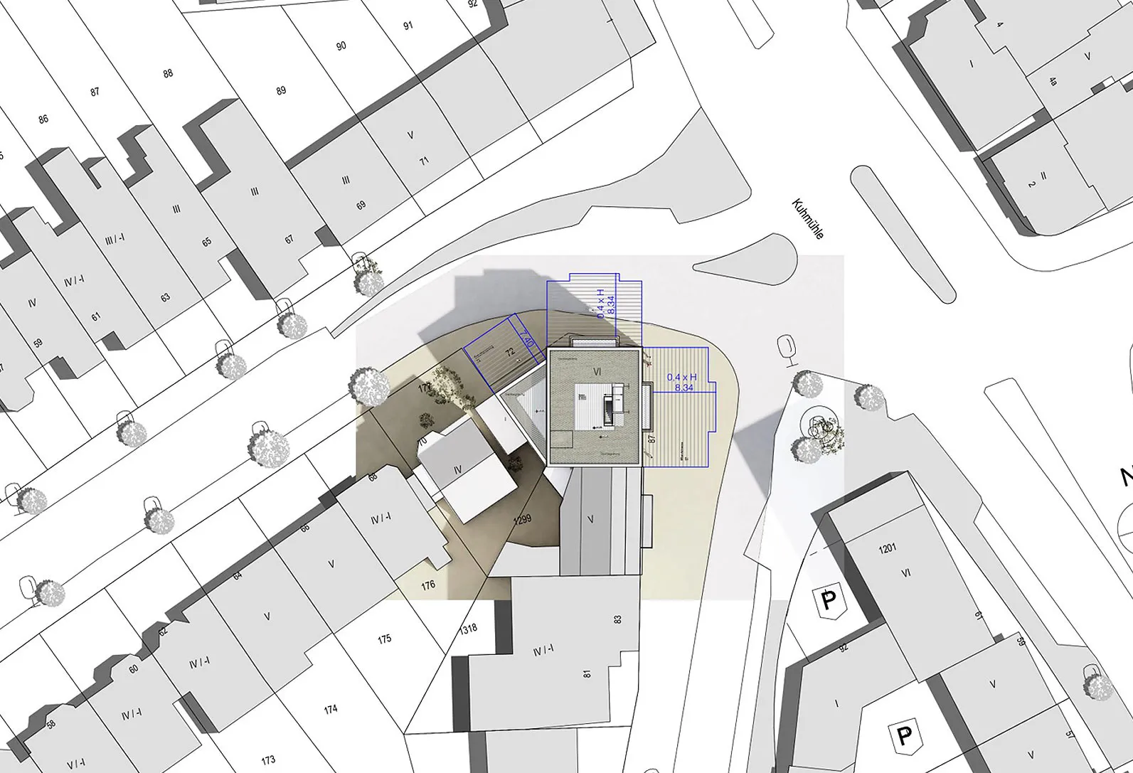
Projektvorschaubild

GRA_72 / REALISIERT

Neubau eines Mehrfamilienhauses
mit 27 Wohneinheiten
Planung und Ausführung
LP 1-5

Graumannsweg 72
Hamburg

2017

Projektdetailbild
Projektdetailbild
Projektdetailbild
Projektdetailbild
Projektdetailbild
Projektdetailbild
Projektdetailbild
Projektdetailbild
Projektdetailbild