Logo
k
i
Projektvorschaubild

HEL_05 / (IN) PLANUNG

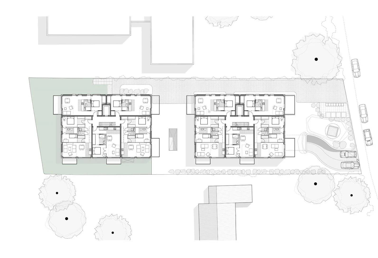
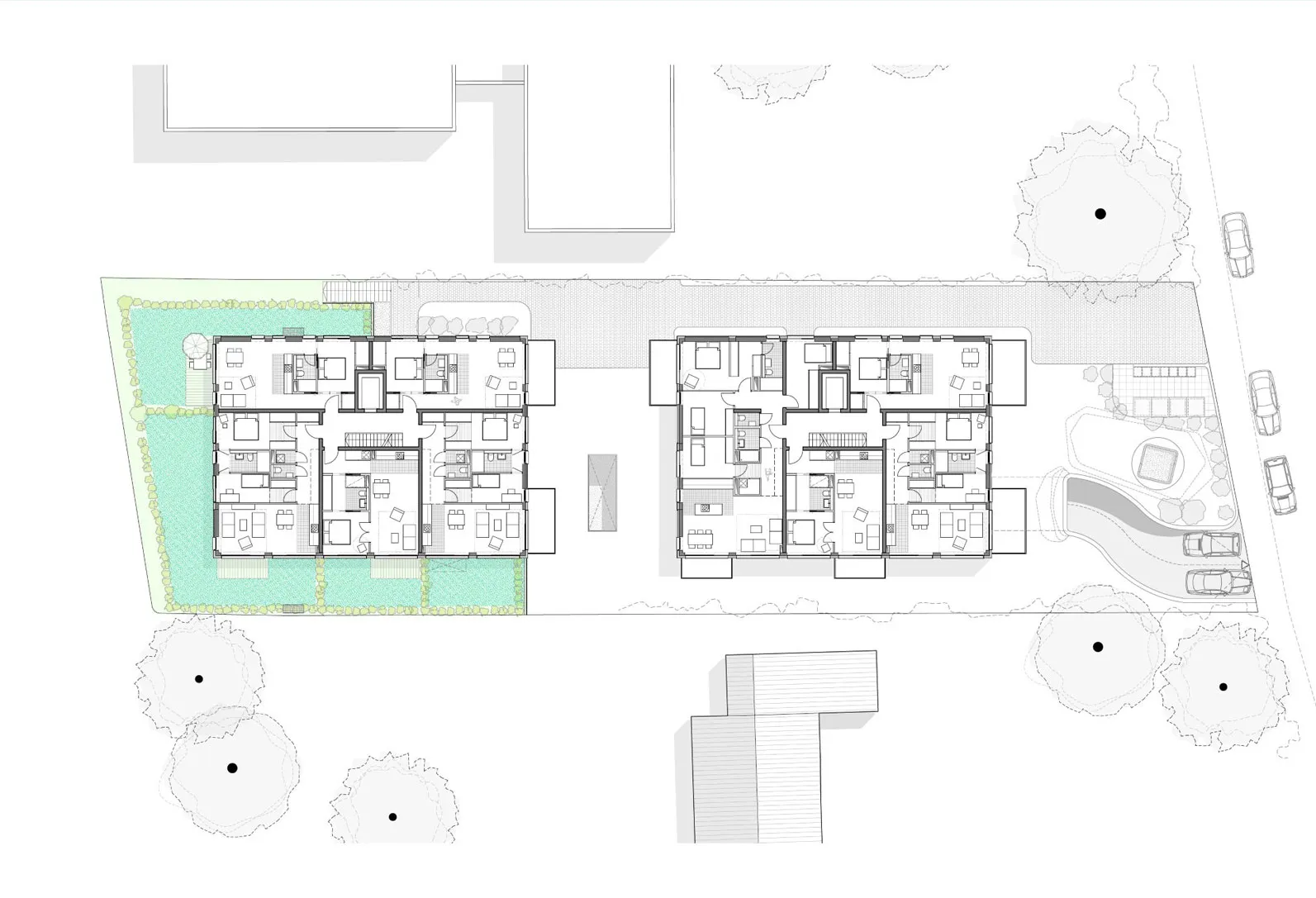
Neubau von 2 Mehrfamilienhäusern
32 Wohneinheiten
Bauantrag, Genehmigung erteilt
LP 1-4

Helldahl 5
Travemünde

2018

Projektdetailbild
Projektdetailbild
Projektdetailbild
Projektdetailbild
Projektdetailbild
Projektdetailbild
Projektdetailbild
Projektdetailbild
Projektdetailbild
Projektdetailbild
Projektdetailbild
Projektdetailbild