Logo
k
i
Projektvorschaubild

JVS_85 / REALISIERT

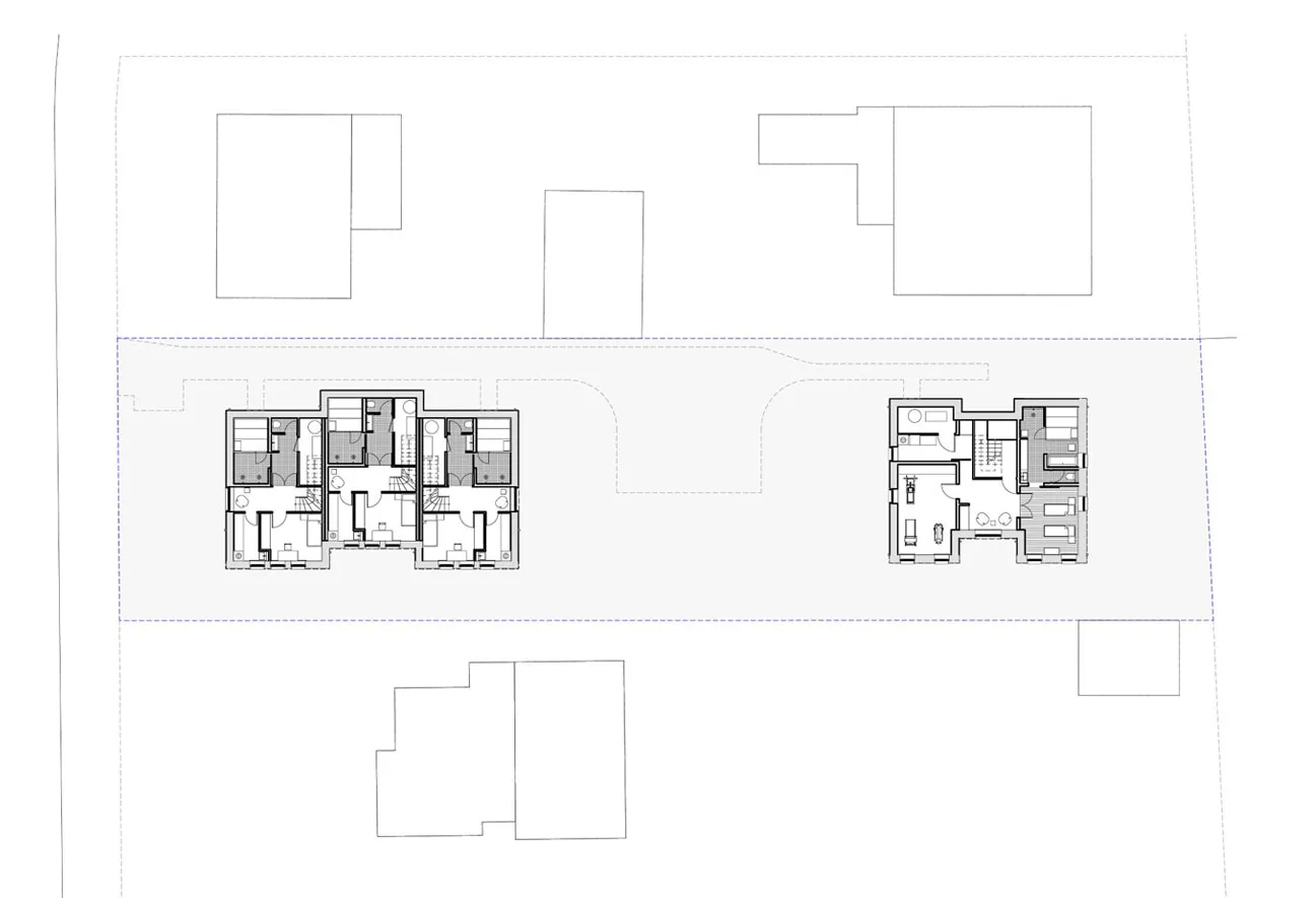
Neubau von 3 Stadthäusern und ein Einfamilienwohnhaus
Baugenehmigung erteilt, in der Umsetzung
LP 1-4

Julius Vosseler Straße 85
Hamburg

2022

Projektdetailbild
Projektdetailbild
Projektdetailbild
Projektdetailbild
Projektdetailbild
Projektdetailbild
Projektdetailbild
Projektdetailbild
Projektdetailbild
Projektdetailbild
Projektdetailbild
Projektdetailbild
Projektdetailbild