Logo
k
i
Projektvorschaubild

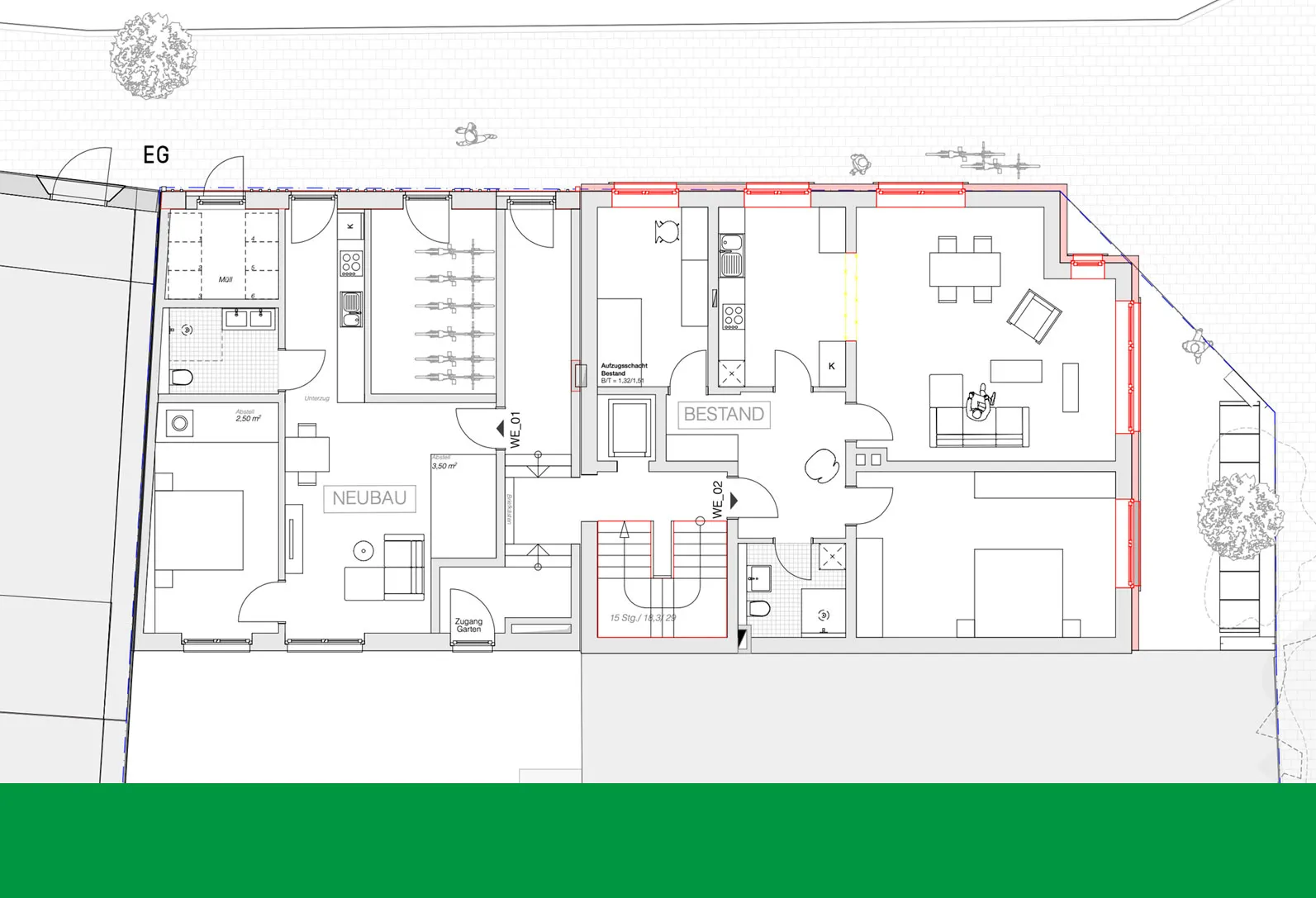
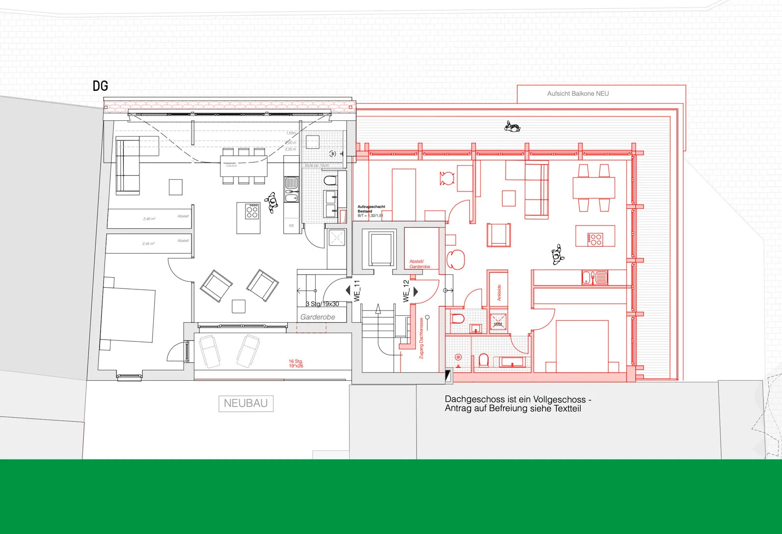
KKO_02 / (IN) PLANUNG

Neubau und Aufstockung
Mehrfamilienhaus mit 12 Wohneinheiten
Status: Baugenehmigung erteilt
LP 1-8

Kleiner Kielort 2
Hamburg

2022

Projektdetailbild
Projektdetailbild
Projektdetailbild
Projektdetailbild
Projektdetailbild
Projektdetailbild
Projektdetailbild
Projektdetailbild
Projektdetailbild
Projektdetailbild
Projektdetailbild
Projektdetailbild
Projektdetailbild
Projektdetailbild