Logo
k
i
Projektvorschaubild

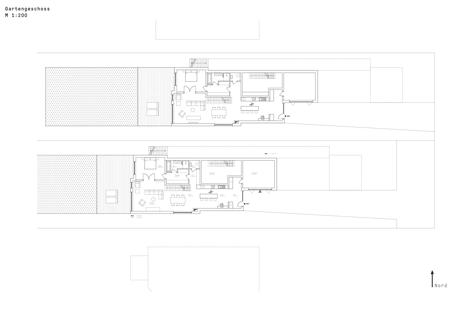
RAD_20 / (IN) PLANNING

New construction of two semi-detached houses
Design

Hamburg
2021

Projektdetailbild
Projektdetailbild
Projektdetailbild
Projektdetailbild
Projektdetailbild
Projektdetailbild
Projektdetailbild